您的位置:
首页
>
城市规划专区
>
批后公示
规划公示
批前公示
批后公示
审批信息
批后公示
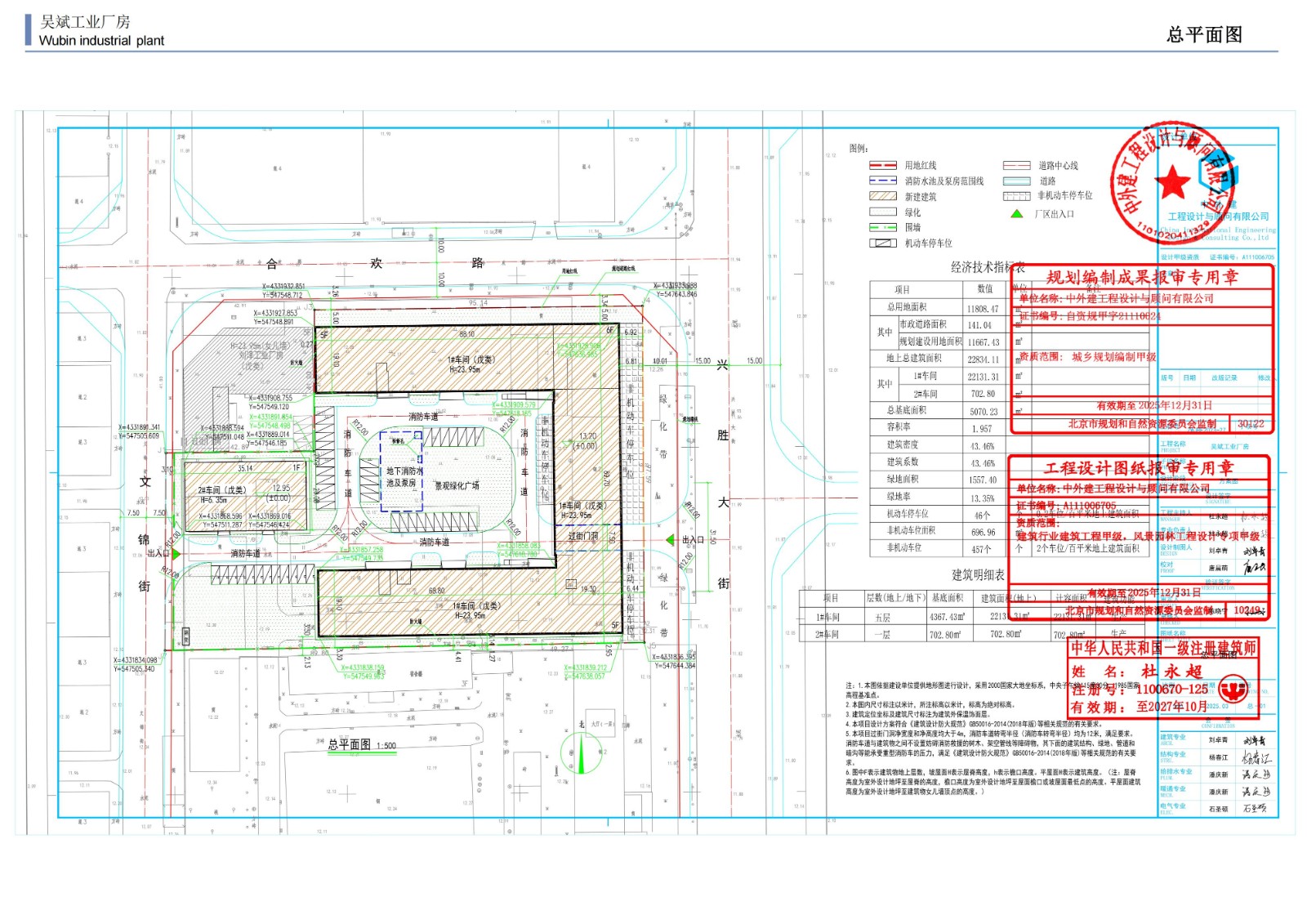
吴斌工业厂房项目建设工程设计方案
添加时间:2025-12-11 14:11:10 浏览次数:525