您的位置:
首页
>
城市规划专区
>
批后公示
规划公示
批前公示
批后公示
审批信息
批后公示
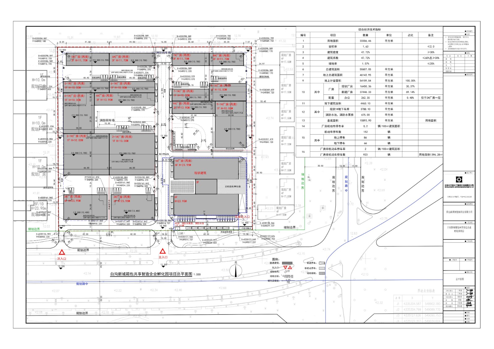
白沟新城箱包共享智造企业孵化园项目工程设计方案
添加时间:2025-12-16 11:18:50 浏览次数:5245